vom 1.3. - 30.4.26 buchbar
Willkommensangebot im Appartement oder Suite
4 Nächte bleiben und nur 3 Nächte bezahlen!
Buchbar von/bis
01.03. - 30.04.2026 = Nebensaison = Hauptsaison
Im Übernachtungspreis enthalten:
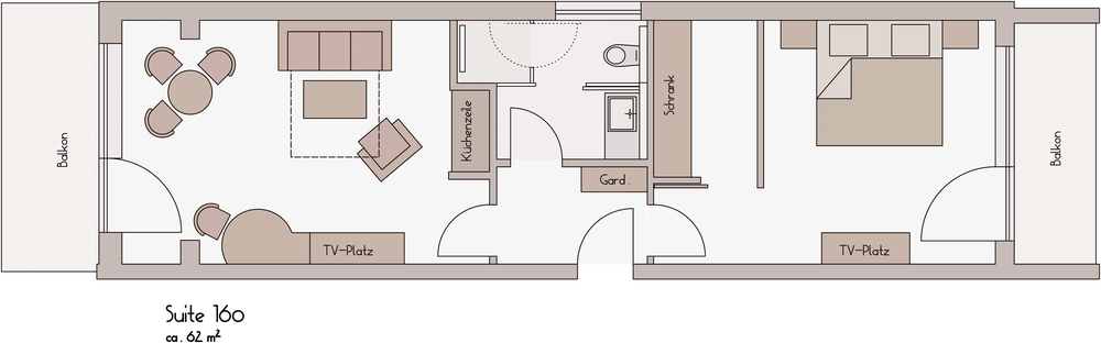
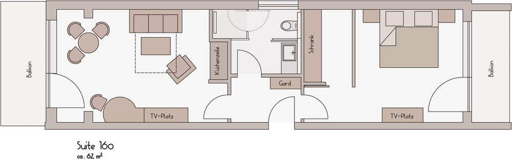
- 4 x Übernachtung im Appartement (Ost/West/Süd) oder einer Suite
- ohne Frühstück
- tägliche Nutzung des hauseigenen Thermalwassers und des Wellnessbereichs
- 1 x Leihbademantel
Die geschenkte Nacht ist beim Preis bereits berücksichtigt.
Nicht in bar auslösbar und nicht kombinierbar bei Buchungen über Drittanbietern.
Einlösbar nur bei Buchung direkt über unsere Rezeption, das Anfrageformular, per E-Mail oder telefonisch (+498531-29080)











